ZDA tervpályázata, melyet a pályázó a Sencseni Operaház tervezésére meghirdetett 2020-as nemzetközi versenyre nyújtott be, kaput nyit a tengerre, és ezzel a dinamikusan fejlődő város, valamint a gazdasági és kulturális értelemben vett nemzet ikonikus szimbólumává válhat.
A terv egy olyan épület megvalósítására tesz kísérletet Sencsen városának tengerpartján, amely a hagyományos operaműfaj szenvedélyes formaelemeit tükrözi, ugyanakkor kortárs megjelenésével a városképhez és a tenger hullámaihoz is igazodik.
A ZDA által a Sencseni Operaház tervezésére benyújtott pályázat a legjobban egy sziklaszirten álló, nyüzsgő, életteli famatuzsálem metaforájával írható le, amely a kultúra ősi fáját jelképezi. A kulturális épületek három nagy vertikális egységét a gyökérzet, a törzs és a lombozat allegóriájaként a kiszolgálás, a közönségforgalmi területek és a művészeti élet hármassága jelképezi.
Monumentalitás és meghittség
Látszólag ellentmondás feszül az Opera épülete mint „emlékmű” és a benne folyó személyes és katartikus művészeti tevékenység között. Az építészek szilárd meggyőződése azonban, hogy a helyszín nagyvonalúsága és a hagyományokon alapuló előadótermek, előcsarnokok bensőségességének kettősége feloldható, ha az egyes funkcionális egységeket önálló épületrészekben alakítjuk ki. Az egyes kulturális egységek ilyen emberi léptékét a tengerre néző, tenger fölött emelkedő kulturális főtéren álló, egymástól független három előcsarnok biztosítja. A különböző időpontokban működő termek előcsarnokai együtt élhetnek és lélegezhetnek az auditóriumokkal.
Ugyanakkor az épületek között létrejövő életteli főtér esti találkozóhellyé vállhat a sencseni lakosok számára. A látogatók a tenger felett lebegő, nagyvonalú, esővédett téren boltívek alatt sétálhatnak, szemlélődve kiülhetnek a lépcsők által képzett szabadtéri amfiteátrumok lépcsőire.
Hagyomány és alakíthatóság
A tervezési koncepció az akusztikai és színháztechnológia gyors fejlődésének eredményeit a 19. századi akusztikus terek ismeretével és hagyományaival ötvözi. Ezt úgy érhetjük el, hogy felidézzük közösségi jellegüket, miközben javítjuk az akusztikát, és megoldjuk a korlátozott láthatóság kérdéseit.
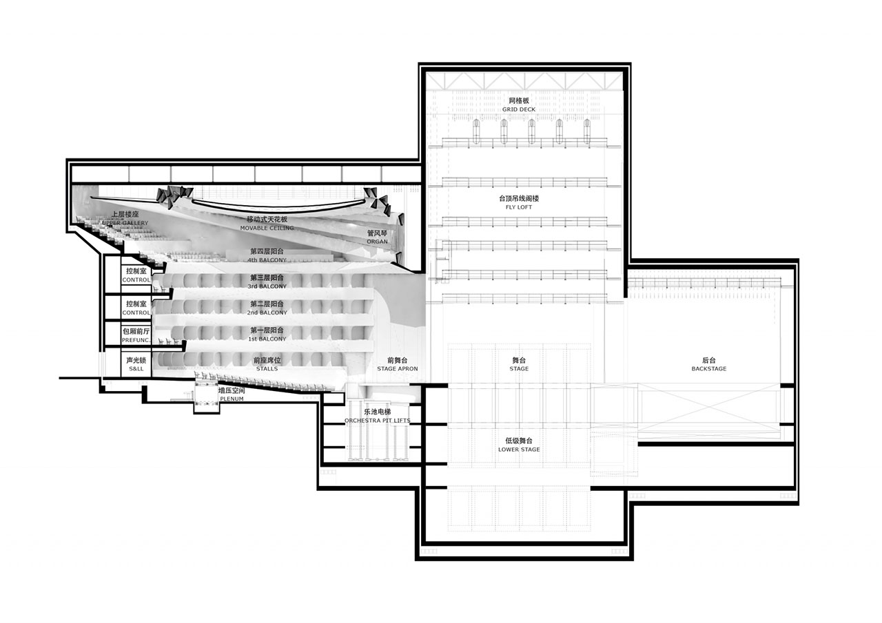
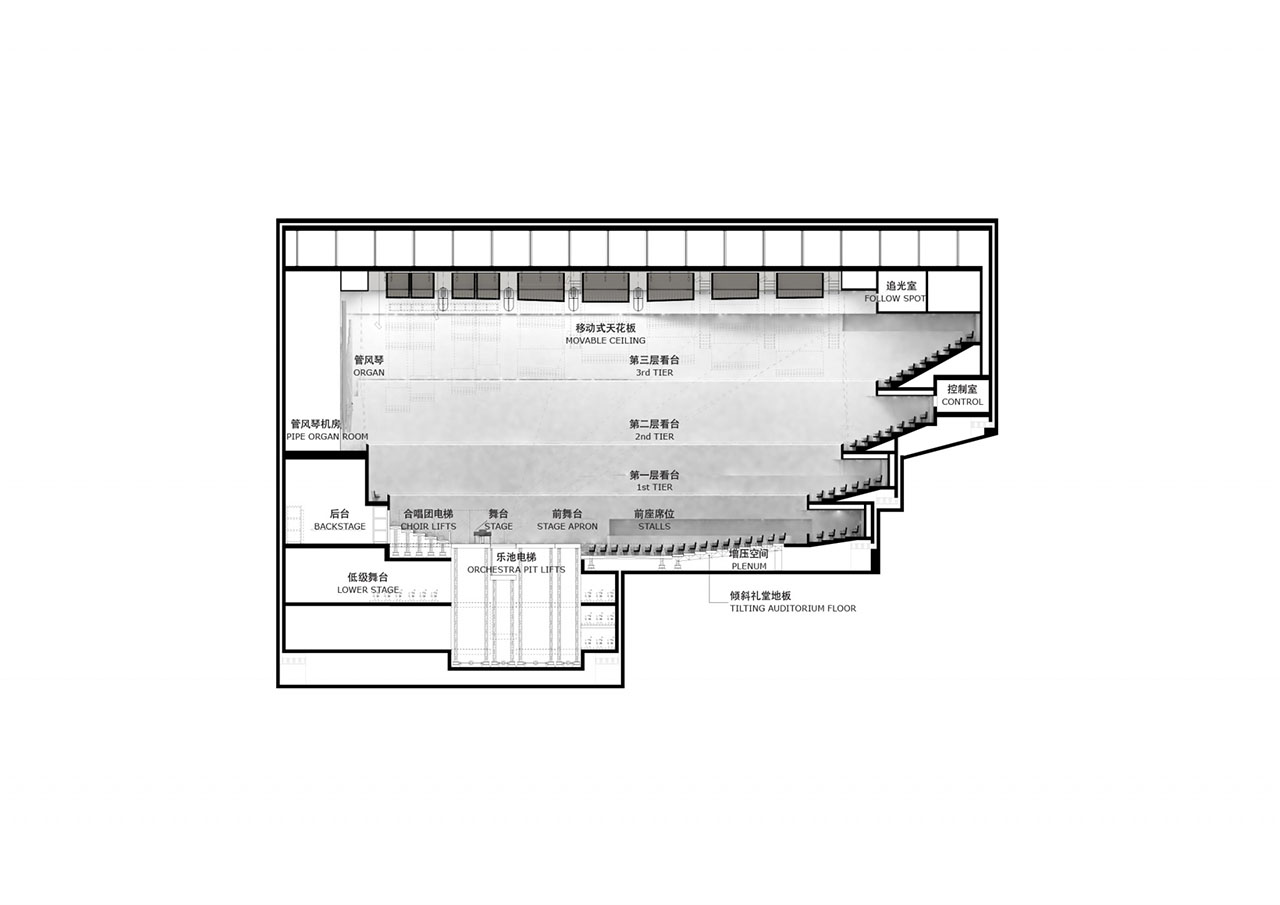
A négy auditórium – az Operaterem (2100 férőhely), a Hangversenyterem (1800 férőhely), az Operett-terem (800 férőhely) és a Kamaraterem (640 férőhely) – kialakításakor az építészek a sokszínű felhasználás lehetőségeit keresték a legújabb technológiák alkalmazásával. A fő funkciók mellett egyszerű, innovatív megoldásokkal minden terem lehetőséget kínál további műfajok befogadására is. Ezt a színháztechnológia és változtatható akusztikai elemek használata teszi lehetővé.
A terv egyesíti Sencsen városának az épülettel szemben támasztott nagyvonalú elvárásait: az új Operaház a város jelképévé válhat – ugyanakkor azt is lehetővé teszi, hogy az előadóművészeti ágak virtuóz technológiai kiszolgálásával korszerű, de emberi léptékű világot teremtsünk.






















































